Nestled on the edge of Bolsover, Appleton View is a stunning development of 161 new homes, offering sweeping views of the surrounding countryside. The site features a range of beautiful properties from two, three, four, and five-bedroom homes, including a selection of stylish bungalows. Each property has been finished to a luxury standard, featuring contemporary layouts for modern living.
Appleton View is thoughtfully designed in harmony with the natural scenery, creating the perfect blend between countryside charm and local town life. An open green space sits as a focal point in the community’s centre, connecting residents through safe play areas, cycling routes, and footpaths.
Woodall Homes works in collaboration with leading suppliers so that residents know to expect a premium build in all our homes. Each of our properties benefits from a choice of luxe German fitted kitchens, Porcelanosa tiling on floors and walls, landscaped gardens, solar panels, EV chargers, and so much more.
We work with high-quality suppliers to provide premium features included with all our builds, including but not limited to:





























Ground Floor
Kitchen/Dining - 8750 x 3153
Living - 3351 x 4916
Utility - 2201 x 1798
WC - 1036 x 1798
First Floor
Bedroom 1 - 3352 x 4468
Bedroom 2 - 3056 x 4245
Bedroom 3 - 2976 x 3830
Bedroom 4 - 3352 x 3843
Ensuite 1 - 2270 x 1618
Ensuite 2 - 2116 x 1606
Bathroom - 2180 x 2761
*Measurements in mm
Positioned on the edge of the countryside at Appleton View, this beautifully proportioned four-bedroom home combines elegant family living with a thoughtfully landscaped setting and excellent connectivity.
A welcoming entrance leads into a spacious living room, featuring an open-aspect bay window that fills the space with natural light. The contemporary open-plan kitchen/dining area is designed for both everyday living and entertaining, with a luxury German-designed kitchen complemented by high specification Neff and Miele appliances. Bifold doors open onto the landscaped rear garden with a paved patio, while a separate utility room, practical
storage cupboard, and stylish downstairs WC complete the ground floor. The home is further enhanced by an integral garage and a private driveway to the front.
Upstairs, the home offers four generous double bedrooms, two of which benefit from ensuite bathrooms. A beautifully appointed family bathroom serves the remaining bedrooms, with all bathrooms finished to an exceptional standard featuring premium Porcelanosa tiling, chrome towel rails, and spa-style dual shower heads, completing this thoughtfully designed and elegant home.
Ground Floor
Kitchen/Dining - 8750 x 3153
Living - 3351 x 4916
Utility - 2201 x 1798
WC - 1036 x 1798
First Floor
Bedroom 1 - 3352 x 4468
Bedroom 2 - 3056 x 4245
Bedroom 3 - 2976 x 3830
Bedroom 4 - 3352 x 3843
Ensuite 1 - 2270 x 1618
Ensuite 2 - 2116 x 1606
Bathroom - 2180 x 2761
*Measurements in mm
Ground Floor
Kitchen/Dining - 6605 x 3752
Living - 4115 x 6076
WC - 997 x 2373
Utility - 1842 x 2223
First Floor
Bedroom 1 - 3983 x 4015
Bedroom 2 - 3420 x 3490
Bedroom 3 - 3585 x 2412
Bedroom 4 - 3067 x 2373
Bathroom - 1910 x 2198
Ensuite - 2655 x 1554
*Measurements in mm
Set within the countryside-edge surroundings of Appleton View, this elegant home offers contemporary living within a thoughtfully landscaped, green setting that blends seamlessly with the surrounding countryside and local amenities.
The ground floor is introduced by a welcoming entrance, leading to a living room featuring dual-aspect bay windows, providing an abundance of natural light and character. To the rear, an expansive open-plan kitchen/dining area is fitted with luxury German-designed cabinetry with high specification Neff and Miele appliances. Modern bifold doors/french doors open onto the landscaped rear garden with a paved patio, creating a natural extension of the living space. A separate utility room with side access and well-considered ground floor storage enhance practicality without compromising style.
The first floor features two generous double bedrooms, alongside two well-proportioned single bedrooms, offering flexible accommodation for family living, guests or home working.
The bathroom and ensuite are finished to a high standard with Porcelanosa tiling, chrome towel rails and spa-style dual shower heads, completing this beautifully balanced and thoughtfully designed home.
Ground Floor
Kitchen/Dining - 6605 x 3752
Living - 4115 x 6076
WC - 997 x 2373
Utility - 1842 x 2223
First Floor
Bedroom 1 - 3983 x 4015
Bedroom 2 - 3420 x 3490
Bedroom 3 - 3585 x 2412
Bedroom 4 - 3067 x 2373
Bathroom - 1910 x 2198
Ensuite - 2655 x 1554
*Measurements in mm
Ground Floor
Kitchen/Dining - 5370 x 3605
Living - 4200 x 4384
WC - 1055 x 2049
First Floor
Bedroom 1 - 3240 x 3635
Bedroom 2 - 3240 x 2890
Bedroom 3 - 2615 x 2616
Bathroom - 2015 x 2512
Ensuite - 1685 x 2222
*Measurements in mm
Set on the countryside edge of Bolsover, Appleton View offers elegant homes within a thoughtfully landscaped setting, with mature trees, hedgerows and green corridors preserved to create a naturally beautiful environment.
The ground floor features a spacious living room with a bay window, alongside a contemporary kitchen/dining area fitted with luxury German-designed cabinetry, with high specification Neff and Miele appliances. Ample utility storage is provided and french doors open onto the landscaped garden, complete with a paved patio. A stylish ground floor WC is finished with premium Porcelanosa tiles, while a driveway to the side of the property provides convenient off-street parking.
The first floor offers two generous double bedrooms and a well-proportioned single bedroom. The principal bedroom benefits from a luxurious ensuite shower, with all bathrooms finished to a premium standard with Porcelanosa tiling, chrome towel rails and spa-style dual shower heads.
Ground Floor
Kitchen/Dining - 5370 x 3605
Living - 4200 x 4384
WC - 1055 x 2049
First Floor
Bedroom 1 - 3240 x 3635
Bedroom 2 - 3240 x 2890
Bedroom 3 - 2615 x 2616
Bathroom - 2015 x 2512
Ensuite - 1685 x 2222
*Measurements in mm
Ground Floor
Kitchen/Dining - 5376 x 3602
Living - 3049 x 4798
WC - 902 x 2161
First Floor
Bedroom 1 - 3196 x 3888
Bedroom 2 - 3196 x 3598
Bedroom 3 - 2296 x 3145
Bathroom - 2066 x 2161
Ensuite - 3196 x 1559
*Measurements in mm
Set within the countryside-edge surroundings of Appleton View, this beautifully designed semi-detached home offers contemporary living within a thoughtfully landscaped setting that balances open space, nature and connectivity.
A welcoming entrance leads into the heart of the home, with practical storage enhancing everyday living. The living room features light-filled spaces, while the elegant open-plan kitchen/dining area is fitted with a luxury German-designed kitchen with high specification Neff and Miele appliances. Patio doors open onto the landscaped rear garden with a paved patio, extending the entertaining space outdoors. A driveway to the side of the property provides convenient off-street parking.
Upstairs, the first floor features two generous double bedrooms, including a principal bedroom with ensuite. A well-proportioned single bedroom offers flexibility for family living or home working, while a separate family bathroom is finished to a high standard with Porcelanosa tiling, chrome towel rails and spa-style dual shower heads, completing this refined and thoughtfully crafted home.
Ground Floor
Kitchen/Dining - 5376 x 3602
Living - 3049 x 4798
WC - 902 x 2161
First Floor
Bedroom 1 - 3196 x 3888
Bedroom 2 - 3196 x 3598
Bedroom 3 - 2296 x 3145
Bathroom - 2066 x 2161
Ensuite - 3196 x 1559
*Measurements in mm
Ground Floor
Kitchen/Dining - 5815 x 4503
Living - 3340 x 5888
WC - 937 x 2148
First Floor
Bedroom 1 - 3115 x 4354
Bedroom 2 - 2741 x 3569
Bedroom 3 - 2959 x 2445
Bedroom 4 - 2585 x 2148
Ensuite - 2741 x 1712
Bathroom - 1894 x 2265
*Measurements in mm
Set within the countryside-edge surroundings of Appleton View, this detached and inviting four-bedroom home offers refined family living within a thoughtfully landscaped and well-connected setting.
A welcoming entrance leads into the heart of the home, where a spacious lounge features a bay window, filling the room with natural light and adding character. The contemporary open-plan kitchen/dining area forms the centrepiece of the home, with a striking central island – perfect for entertaining. The luxury German-designed kitchen is complemented by high-specification Neff and Miele appliances, while bifold doors open onto the landscaped rear garden with a paved patio.
Additional utility storage and a stylish downstairs WC enhance everyday convenience and the property is further complemented by a garage and driveway, offering secure off-street parking. Upstairs, the first floor offers two generous double bedrooms and two well-proportioned single bedrooms with the principal bedroom boasting an ensuite. All bathrooms feature premium Porcelanosa tiling, chrome towel rails, and spa-style dual shower heads.
Ground Floor
Kitchen/Dining - 5815 x 4503
Living - 3340 x 5888
WC - 937 x 2148
First Floor
Bedroom 1 - 3115 x 4354
Bedroom 2 - 2741 x 3569
Bedroom 3 - 2959 x 2445
Bedroom 4 - 2585 x 2148
Ensuite - 2741 x 1712
Bathroom - 1894 x 2265
*Measurements in mm
Kitchen/Dining - 4651 x 3512
Utility - 1500 x 2380
Living - 4439 x 4651
Bedroom 1 - 3615 x 3340
Bedroom 2 - 3469 x 2997
Bedroom 3 - / Study 2215 x 3141
Bathroom - 2380 x 1897
Ensuite - 2378 x 1498
*Measurements in mm
Set within the countryside-edge setting of Appleton View, The Sudbury is a thoughtfully designed bungalow offering refined single-storey living within a beautifully landscaped environment that embraces open space and natural surroundings.
A welcoming entrance leads through to an elegant open-plan kitchen/dining area, fitted with luxury German-designed cabinetry, high-specification Neff and Miele appliances, and a dedicated utility room. Double doors open from the kitchen/diner into the main living room, creating a wonderful sense of openness while retaining the flexibility to enjoy private, quieter spaces when desired. Patio doors from the living area open onto the landscaped garden with a paved patio, forming a seamless connection between indoor and outdoor living.
The accommodation includes two generous double bedrooms, with the principal bedroom benefitting from an ensuite, alongside a versatile single bedroom or study - ideal for home working or guest accommodation. The bathroom and ensuite are finished to a high standard, featuring Porcelanosa tiling, chrome towel rails, and spa-style dual shower heads, completing this beautifully balanced and thoughtfully designed home. The property is further complemented by a garage and driveway.
Kitchen/Dining - 4651 x 3512
Utility - 1500 x 2380
Living - 4439 x 4651
Bedroom 1 - 3615 x 3340
Bedroom 2 - 3469 x 2997
Bedroom 3 - / Study 2215 x 3141
Bathroom - 2380 x 1897
Ensuite - 2378 x 1498
*Measurements in mm
Kitchen/Dining - 3319 x 5203
Utility - 1633 x 2326
Living - 3506 x 4806
Bedroom 1 - 3862 x 3790
Bedroom 2 - 4634 x 2914
Bedroom 3 - 3319 x 2271
Bathroom - 2285 x 1940
Ensuite - 1716 x 2326
*Measurements in mm
Set within the countryside-edge surroundings of Appleton View, this beautifully crafted bungalow offers refined single-storey living within a thoughtfully landscaped and tranquil setting.
A welcoming entrance leads into the heart of the home, with an elegant open-plan kitchen/dining area fitted with luxury German-designed cabinetry and high specification Neff and Miele appliances. Patio doors open onto the landscaped garden with paving, allowing for effortless indoor-outdoor living. A separate utility room and well-considered storage enhance everyday practicality, while the property is further complemented by a double garage and an ample driveway to the front.
The accommodation includes two generous double bedrooms, with the principal bedroom benefiting from an ensuite, alongside a well-proportioned single bedroom providing flexibility for guests or a home office. The bathroom and ensuite are finished to an exceptional standard, featuring Porcelanosa tiling, chrome towel rails and spa-style dual shower heads, completing this thoughtfully designed and luxurious single-level home.
Kitchen/Dining - 3319 x 5203
Utility - 1633 x 2326
Living - 3506 x 4806
Bedroom 1 - 3862 x 3790
Bedroom 2 - 4634 x 2914
Bedroom 3 - 3319 x 2271
Bathroom - 2285 x 1940
Ensuite - 1716 x 2326
*Measurements in mm
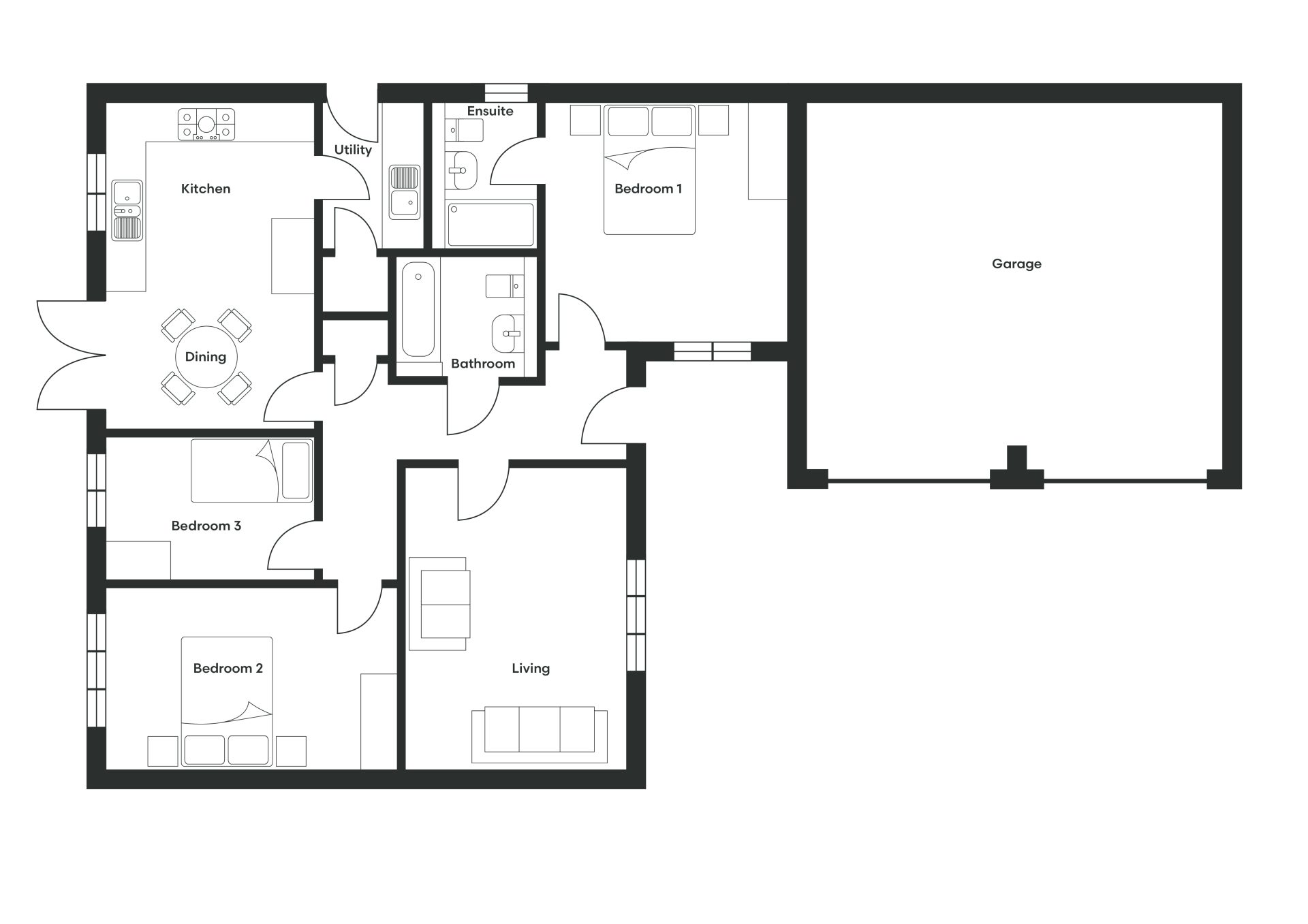
Ground Floor
Kitchen/Dining - 6603 x 6078
Living - 3496 x 5875
WC - 1022 x 2122
Utility - 1725 x 2225
First Floor
Bedroom 2 - 3422 x 3602
Bedroom 3 - 3423 x 3740
Bedroom 4 - 3500 x 2375
Bedroom 5/Study - 3065 x 2122
Bathroom - 1913 x 2273
Ensuite 2 - 2607 x 1505
Second Floor
Bedroom 1 - 4770 x 4291
Ensuite 1 - 1718 x 2873
Dressing Area - 3381 x 2005
*Measurements in mm
This exceptional detached home at Appleton View combines contemporary design with generous living space across three thoughtfully arranged floors, delivering elegance, practicality, and a sense of refined comfort.
From the welcoming entrance, an expansive open-plan kitchen/ dining area is fitted with a luxury German-designed kitchen featuring high specification Neff and Miele appliances. Bifold doors open onto the landscaped rear garden, creating a natural extension of the living space and perfect for entertaining.
A practical utility room with side access is conveniently located off the kitchen, providing everyday functionality.
Upstairs, the first floor features two generous double bedrooms with a Jack and Jill ensuite, alongside two well-proportioned single bedrooms. A stylish family bathroom is finished with Porcelanosa tiling, chrome towel rails and spa-style dual shower heads, combining luxury with practicality.
Occupying the entire second floor, the luxurious master suite offers a spacious open-plan dressing area, private ensuite and additional storage, providing a secluded and elegant retreat. The home is further complemented by a garage and ample driveway, completing this beautifully balanced and thoughtfully designed residence.
Ground Floor
Kitchen/Dining - 6603 x 6078
Living - 3496 x 5875
WC - 1022 x 2122
Utility - 1725 x 2225
First Floor
Bedroom 2 - 3422 x 3602
Bedroom 3 - 3423 x 3740
Bedroom 4 - 3500 x 2375
Bedroom 5/Study - 3065 x 2122
Bathroom - 1913 x 2273
Ensuite 2 - 2607 x 1505
Second Floor
Bedroom 1 - 4770 x 4291
Ensuite 1 - 1718 x 2873
Dressing Area - 3381 x 2005
*Measurements in mm
Ground Floor
Kitchen/Dining - 6603 x 4728
Living - 3496 x 5200
WC - 1023 x 2122
Utility - 1634 x 786
First Floor
Bedroom 1 - 3422 x 3602
Bedroom 2 - 2988 x 3740
Bedroom 3 - 3500 x 2375
Bedroom 4 - 3065 x 2122
Ensuite - 2607 x 1505
Bathroom - 1913 x 2273
*Measurements in mm
Set within the countryside-edge surroundings of Appleton View, this thoughtfully designed four-bedroom home offers refined family living within a well-connected and beautifully landscaped setting.
A light and airy entrance hallway creates a welcoming first impression, leading to a comfortable living room and a contemporary open-plan kitchen and dining space. The kitchen is centred around a striking island, ideal for everyday family life and is complemented by luxury German-designed cabinetry with high specification Neff and Miele appliances.
Bifold doors open directly onto the landscaped rear garden, complete with paved patio areas, allowing natural light to flood the interior and providing a seamless connection between indoor and outdoor living. Additional ground-floor features include ample utility
storage and a stylish downstairs WC finished with Porcelanosa tiling.
Upstairs, the first floor offers two generous double bedrooms and two well-proportioned single bedrooms, providing flexible accommodation for growing families, guests or home working. The principal bedroom features an ensuite, with the family bathroom and ensuite finished in premium Porcelanosa tiling and high-quality contemporary fittings.
Externally, the home is completed by a private driveway and single garage, offering convenient off-street parking.
Ground Floor
Kitchen/Dining - 6603 x 4728
Living - 3496 x 5200
WC - 1023 x 2122
Utility - 1634 x 786
First Floor
Bedroom 1 - 3422 x 3602
Bedroom 2 - 2988 x 3740
Bedroom 3 - 3500 x 2375
Bedroom 4 - 3065 x 2122
Ensuite - 2607 x 1505
Bathroom - 1913 x 2273
*Measurements in mm
Ground Floor
Kitchen/Dining - 3729 x 7615
Living - 4111 x 4010
Study - 4111 x 2304
WC - 2026 x 1071
Utility - 1950 x 1802
First Floor
Bedroom 1 - 3604 x 3360
Bedroom 1/Dressing Room - 3739 x 2068
Bedroom 2 - 4121 x 4532
Bedroom 3 - 4146 x 2968
Bathroom - 2279 x 2589
Ensuite 1 - 3118 x 1812
Ensuite 2 - 2621 x 1812
Second Floor
Bedroom 4 - 4121 x 5028
Bedroom 5 - 2622 x 3057
Shower - 3739 x 2731
*Measurements in mm
Set within the countryside-edge surroundings of Appleton View, this impressive five-bedroom, three-storey home offers expansive and flexible living designed for modern family lifestyles.
The ground floor is introduced by a welcoming entrance hallway, complemented by practical storage. The spacious open-plan kitchen/dining area is fitted with luxury German-designed cabinetry, a striking central island, and high-specification Neff and Miele appliances - ideal for both everyday living and entertaining. Bifold doors from the dining area open onto the landscaped rear garden with a paved patio. A separate living room, study, and utility room provide excellent versatility, while a stylish downstairs WC completes the ground floor. The property is further enhanced by a garage and private driveway positioned to the side.
Arranged across the upper floors are four generous double bedrooms and a well-proportioned fifth bedroom. The first floor hosts the principal bedroom with dressing area and ensuite, a second large double bedroom with its own ensuite, and a third double bedroom, all served by a beautifully appointed family bathroom.
The second floor offers a further spacious double bedroom with ample storage, a single bedroom, and a large shower room serving both rooms.
All bathrooms and ensuites throughout the home are finished to an exceptional standard, featuring premium Porcelanosa tiling, chrome towel rails, and indulgent spa-style dual shower heads, completing this luxurious family residence.
Ground Floor
Kitchen/Dining - 3729 x 7615
Living - 4111 x 4010
Study - 4111 x 2304
WC - 2026 x 1071
Utility - 1950 x 1802
First Floor
Bedroom 1 - 3604 x 3360
Bedroom 1/Dressing Room - 3739 x 2068
Bedroom 2 - 4121 x 4532
Bedroom 3 - 4146 x 2968
Bathroom - 2279 x 2589
Ensuite 1 - 3118 x 1812
Ensuite 2 - 2621 x 1812
Second Floor
Bedroom 4 - 4121 x 5028
Bedroom 5 - 2622 x 3057
Shower - 3739 x 2731
*Measurements in mm
Ground Floor
Kitchen/Dining - 5370 x 3605
Living - 4384 x 4200
WC - 1055 x 2049
First Floor
Bedroom 1 - 3240 x 3635
Bedroom 2 - 3240 x 2890
Bedroom 3 - 2615 x 2615
Ensuite - 1685 x 2222
Bathroom - 2015 x 2512
*Measurements in mm
Nestled on the edge of the countryside at Appleton View, this beautifully designed three-bedroom home combines modern family living with a thoughtfully landscaped and well-connected setting.
A welcoming entrance leads directly to a comfortable living room, featuring an open-aspect bay window that fills the space with natural light. The contemporary open-plan kitchen/dining area is fitted with luxury German-designed cabinetry, high specification Neff and Miele appliances and features ample storage. French doors open onto the landscaped rear garden with a paved patio, creating a seamless connection between indoor and outdoor living. A stylish downstairs WC finished with Porcelanosa tiling completes the ground floor.
The first floor offers two spacious double bedrooms and a well-sized single, with the principal bedroom benefitting from an ensuite. Both the ensuite and family bathroom are finished to a high standard, featuring Porcelanosa tiling, chrome towel rails, and spa-style dual shower heads throughout.
Ground Floor
Kitchen/Dining - 5370 x 3605
Living - 4384 x 4200
WC - 1055 x 2049
First Floor
Bedroom 1 - 3240 x 3635
Bedroom 2 - 3240 x 2890
Bedroom 3 - 2615 x 2615
Ensuite - 1685 x 2222
Bathroom - 2015 x 2512
*Measurements in mm

Families are well catered for in Bolsover, with a choice of excellent schools and clubs nearby.
Brockley Primary School is just a 15-minute walk from Appleton View, while Bolsover Infant School is a 5-minute drive away. For the older children, Bolsover Secondary School and Heritage High School in the neighbouring area of Clowne are both less than a 10-minute drive, further supported by established bus routes.
There is also a variety of everyday amenities available to support daily life in Appleton View, including major supermarkets, leisure facilities, and healthcare services, with Chesterfield Royal Hospital less than a 15-minute drive away.

Bolsover is well-suited for commuters, offering convenient transport links across the region and beyond. The M1 is easily accessible, with direct routes to Chesterfield, Mansfield, Sheffield, and Leeds. A regular bus service operates within the local area, linking Bolsover with neighbouring towns and villages.
Chesterfield Train Station is just a short drive away, offering routes across the UK, with quick access to major UK cities and towns, making Appleton View the perfect blend of a rural setting with excellent transport networks right on your doorstep.

Premium quality is ingrained at the heart of every Woodall Home. By collaborating with experienced and industry-leading suppliers, our homes are thoughtfully designed and built to last.
We don’t believe in sacrificing luxury, with our homes featuring high-end finishes as standard, from Porcelanosa tiling and smart appliances to spa-like bathrooms and a range of sustainable features. Each element is carefully chosen to elevate beauty, increase comfort, and achieve a higher standard of living.
Our homes are designed to be a sanctuary, made to feel natural, light, effortlessly sleek, and welcoming every time you step through the door. Get in touch today to view an array of our beautiful new builds in Bolsover.
137 Shuttlewood Rd
Bolsover, Chesterfield
S44 6NX
COMING SOON
Bolsover

We always listen to our customers to better understand how they live in and use their homes. By knowing more about how people live, our approach to the design and delivery of our new homes ensures that we satisfy our customers’ demands and aspirations.